Hier mal ein paar Daten zu unserem Haus.
Es handelt sich dabei um ein VIO200 Fertighaus der Firma Fingerhaus.
Satteldach
Dachneigung: 38°
Kniestock: 1,00 m
Wohnfläche: 126,80 m²
Heizung sowie Warmwasser läuft dann später über eine Erdwärmepumpe, eine Vitocal 222-G.
Im ganzen Haus dann über Fußbodenheizung.
Rollläden sind überall vorhanden, im Moment ist die Überlegung diese elektrisch ausführen zu lassen, bis auf das obere Badezimmer, da dieses ja als 2. Fluchtweg dient.
Auch die Planung einer Photovoltaik wurde berücksichtigt, das wird aber erst umgesetzt, wenn noch Geld da ist... :-)
Im Winter nutzen wir dann einen Kamin um es auch schön gemütlich zu haben. Aufgrund der Raumaufteilung fiel uns die richtige Auswahl des Kamins und die Positionierung nicht leicht.
Es soll dieser hier werden, da dieser am wenigsten Platz benötigt und sich direkt im Schornstein befindet.
Des weiteren kann man direkt daneben etwaige Möbel stellen, da er die Wärme nur nach vorne abstrahlt.
Das ist die Ansicht des Hauses, wenn man uns später besuchen möchte und in unsere Straße läuft.
So in etwa sieht es dann irgendwann einmal(hoffentlich) aus. Unsere spätere Terrasse.
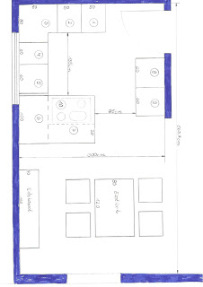
Hier die Grundrisse vom EG und vom DG. Die Darstellung der Möbel in der Skizze stimmt nicht ganz mit dem überein, wie wir es uns vorstellen.Dient ja auch nur als Beispiel.
Donnerstag, 20. Dezember 2012
Küchenangebote
Nachdem wir letzten Monat das erste Küchenstudio in Dahlewitz besucht haben und dort knappe 5 Stunden verbracht haben, versuche ich nun alle Küchenhersteller anzuschreiben und denen die Angebote per Mail aus dem Ärmel zu locken. ;-)
Teilweise klappt das, manch anderer möchte unbedingt einen Termin machen.
Was wir haben wollen, wissen wir eigentlich schon ganz genau, so kann man das ganz gut an andere weitergeben.
Mittlerweile liegen uns 4 Angebote vor, die sich meist nur in der Ausstattung der Elektrogeräte unterscheiden.
Es stehen aber noch weitere aus. Die engere Auswahl bekommt dann das Vergnügen sich mit uns treffen zu dürfen.
So soll das ganze später einmal aussehen
Das ist eine der Skizzen die ich den Küchenstudios geschickt habe. Das reicht meistens aus und spart ne Menge Zeit.
Da der Raum nicht viel Spielraum lässt,gibt es kaum andere Möglichkeiten der Planung.
Teilweise klappt das, manch anderer möchte unbedingt einen Termin machen.
Was wir haben wollen, wissen wir eigentlich schon ganz genau, so kann man das ganz gut an andere weitergeben.
Mittlerweile liegen uns 4 Angebote vor, die sich meist nur in der Ausstattung der Elektrogeräte unterscheiden.
Es stehen aber noch weitere aus. Die engere Auswahl bekommt dann das Vergnügen sich mit uns treffen zu dürfen.
So soll das ganze später einmal aussehen
Das ist eine der Skizzen die ich den Küchenstudios geschickt habe. Das reicht meistens aus und spart ne Menge Zeit.
Da der Raum nicht viel Spielraum lässt,gibt es kaum andere Möglichkeiten der Planung.
Freitag, 7. Dezember 2012
Eindrücke vom Grundstück
Das war ein ehemaliges Gärtnereigelände, da standen überall solche Betontische, auf denen die Blumen gewässert wurden. Des weiteren standen links hinter uns noch zwei alte Gewächshäuser, die hier nicht zu sehen sind.
Zwischendurch sind wir dann mal wieder gucken gefahren, um zu sehen was alles so passiert. Hier sieht man die Überreste des Gewächshauses und der Betontische.
Zwei weitere Wochen später sah das ganze dann bereits so aus. Allet wech!! ;-)
Beim nächsten mal mach ich mal ordentliche Bilder mit der Kamera und nicht mit dem Apfel-Handy. ;-)
Mittwoch, 5. Dezember 2012
Wie alles anfing...
Mal kurz angerissen, wie bei uns alles anfing.
Im August 2012 nahmen wir Kontakt zu einem Berater von Fingerhaus auf.
Nach zwei Terminen bei diesem Berater entschieden wir uns für einen Beraterwechsel.
Das war das beste was wir je machen konnten....
Wir hatten dann Kontakt mit Frau R.
Diese hat uns alle Fragen schnellstmöglich beantwortet und war auch sonst immer für uns da.
Bei ihr unterzeichneten wir dann auch am 17.112012 den Werkvertrag für ein Vio200 auf Bodenplatte.
Ursprünglich planten wir südlich von Berlin zu bauen, in Blankenfelde. Das haben wir aber aufgrund des geplanten Flughafens in Berlin und der Flugrouten doch sein gelassen.
Wir haben dann im Südteil Berlins ein Baufeld gefunden, in dem insgesamt 39 neue Grundstücke entstehen.
Dort haben wir uns dann ein Grundstück reservieren lassen.
Anfang November wurde dieses dann gekauft. Es hat 630m² und liegt in dieser Siedlung ganz hinten in einer Sackgasse, so haben wir zumindest keinen Durchgangsverkehr.
Unser VIO haben wir vom Grundriss kaum geändert(Bilder folgen). Als Eigenleistung werden wir das Ausbaupaket 1 machen, sowie Boden und Wandbeläge.
Des weiteren haben wir die Innentüren und die Treppe abbemustert.
Beheizt wird unser Haus mittels Erdwärme und Fußbodenheizung.
Nun haoffen wir das alles ganz schnell geht, damit wir schnellstmöglcih einziehen können...
Im August 2012 nahmen wir Kontakt zu einem Berater von Fingerhaus auf.
Nach zwei Terminen bei diesem Berater entschieden wir uns für einen Beraterwechsel.
Das war das beste was wir je machen konnten....
Wir hatten dann Kontakt mit Frau R.
Diese hat uns alle Fragen schnellstmöglich beantwortet und war auch sonst immer für uns da.
Bei ihr unterzeichneten wir dann auch am 17.112012 den Werkvertrag für ein Vio200 auf Bodenplatte.
Ursprünglich planten wir südlich von Berlin zu bauen, in Blankenfelde. Das haben wir aber aufgrund des geplanten Flughafens in Berlin und der Flugrouten doch sein gelassen.
Wir haben dann im Südteil Berlins ein Baufeld gefunden, in dem insgesamt 39 neue Grundstücke entstehen.
Dort haben wir uns dann ein Grundstück reservieren lassen.
Anfang November wurde dieses dann gekauft. Es hat 630m² und liegt in dieser Siedlung ganz hinten in einer Sackgasse, so haben wir zumindest keinen Durchgangsverkehr.
Unser VIO haben wir vom Grundriss kaum geändert(Bilder folgen). Als Eigenleistung werden wir das Ausbaupaket 1 machen, sowie Boden und Wandbeläge.
Des weiteren haben wir die Innentüren und die Treppe abbemustert.
Beheizt wird unser Haus mittels Erdwärme und Fußbodenheizung.
Nun haoffen wir das alles ganz schnell geht, damit wir schnellstmöglcih einziehen können...
Freitag, 30. November 2012
Los geht's
Unser erster Post im neu erstellten Block.
Erstmal schauen wie das alles funktioniert, dann kommen die Infos zum Haus, Grundstück usw....
Nur soviel: Es wird ein VIO200, mit kaum Änderungen am Grundriss.
Erstmal schauen wie das alles funktioniert, dann kommen die Infos zum Haus, Grundstück usw....
Nur soviel: Es wird ein VIO200, mit kaum Änderungen am Grundriss.
Abonnieren
Kommentare (Atom)
